REQUEST A TOUR If you would like to see this home without being there in person, select the "Virtual Tour" option and your agent will contact you to discuss available opportunities.
In-PersonVirtual Tour
Listed by Shirley A MacFarlane • Global Direct Realty Inc.
$ 25,000
Est. payment /mo
Active
3824 Ellice STREET Regina, SK S4W 0L3
6,250 Sqft Lot
UPDATED:
Key Details
Property Type Vacant Land
Listing Status Active
Purchase Type For Sale
Subdivision Harbour Landing
MLS Listing ID SK015463
Lot Size 6,250 Sqft
Acres 0.14348026
Source Saskatchewan
Property Description
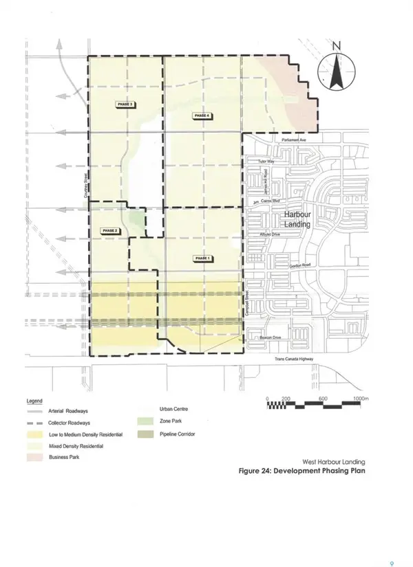
TWO 25' x 125' undeveloped residential lots in Devonia Park or Phase IV of West Harbour Landing (located west of Harbour Landing and south of 25th Avenue). Investment opportunity only at this time, with potential to build on in the future. Devonia Park is a quarter section of land originally subdivided into 1,400 lots in 1912. Brokerage sign at the corner of Campbell Street and Parliament Avenue. GST may apply to the sale price. More information at the 'West Harbour Landing Neighborhood Planning Report'. There may be other costs once the land is developed..
Location
Province SK
Community Harbour Landing
Building
Lot Description Rectangular
Others
Ownership Freehold







